
1. 概述
旋流沉砂池是利用机械力控制水流流态与流速、加速沙粒的沉淀并使有机物随水流带走的沉砂装置。
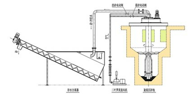
2. 结构和工作原理
沉砂池由流入口,流出口,沉砂区,砂斗、涡轮驱动装置以及排沙系统等组成。污水由流入口切线方向流入沉砂区,进水渠道设一跌水堰,使可能沉积在渠道底部的沙子向下滑入沉砂池;还设有一挡板,使水流及砂子进入沉砂池时向池底流行,并加强附壁效应。在沉砂池中间设有可调速的桨板,使池内的水流保持环流。桨板、挡板和进水水流组合在一起,旋转的涡轮叶片使砂粒呈螺旋形流动,促进有机物和砂粒的分离,由于所受离心力不同,相对密度较大的砂粒被甩向池壁,在重力作用下沉入砂斗;而较轻的有机物,则在沉砂池中间部分与砂子分离,有机物随出水旋流带出池外。通过调整转速,可以达到较佳的沉砂效果。砂斗内沉砂可以采用空气提升、排沙泵排沙等方式排除,再经过砂水分离达到清洁排沙的标准。

3. 主要特点:
旋流式沉砂池具有占地省、除砂效率高、操作环境好、设备运行可靠等特点。
1)适应流量变化能力强;
2)水头损失小,典型的损失值仅6mm;
3)细砂粒去除率高,140(0.104mm)目的细砂也可达73%;
4)动能效率高。



